























See all the images
See accommodations
See the prices
The benefits of the stay
- See details of included and paid services
General description of the residence
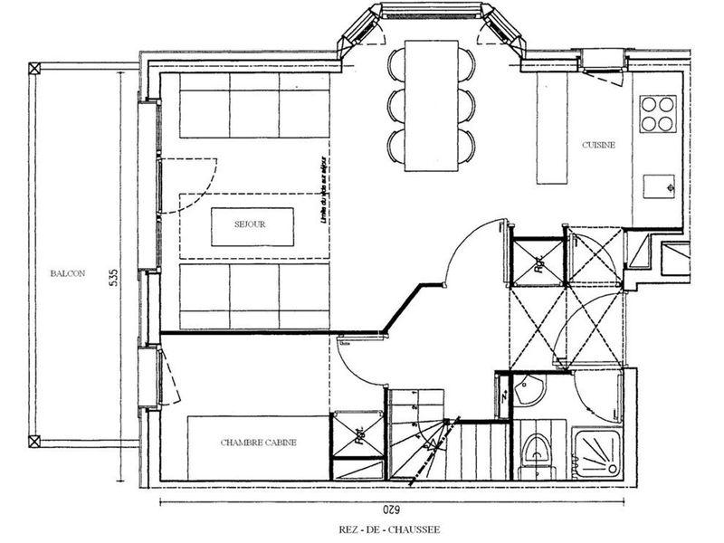
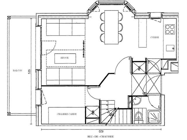
Forêt Hamlet - 2 bedroom duplex apartment, of 46m²,
situated on the 1st floor of the residence ATHAMANTE, with lift,
accomodate up to 7 people.
On the ground floor: entrance, living room with dining area, a set of bunk beds (2 sleepings) and a single bed, openkitchen, bedroom 1 with bunk beds (2 sleepings), bathroom with toilet.
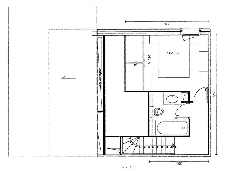
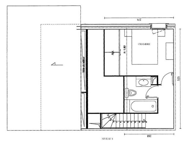
On the 1st floor: bedroom 2 with a double bed and a bathroom with toilet.
Independent north facing balcony with a beautiful view on the valley.
Services included: End-of-stay cleaning (except kitchen), bed linen (except summer season*) * from June to September.
Ski locker.
NON SMOKING APARTMENT.
PETS ALLOWED.
Possibility to rent an indoor or outdoor parking. Consult us.
Property managed by a professional. Unless stated, services such as cleaning, bed linen, towels etc. are not included in the price of this rental. If pets are allowed (information in the advertisement), charges may be applicable.
Only equipment mentioned in this advertisement are present. Equipment not mentioned are not considered to be present. Unless there is an electric charging station in the accommodation, charging electric vehicles is prohibited.
situated on the 1st floor of the residence ATHAMANTE, with lift,
accomodate up to 7 people.
On the ground floor: entrance, living room with dining area, a set of bunk beds (2 sleepings) and a single bed, openkitchen, bedroom 1 with bunk beds (2 sleepings), bathroom with toilet.
On the 1st floor: bedroom 2 with a double bed and a bathroom with toilet.
Independent north facing balcony with a beautiful view on the valley.
Services included: End-of-stay cleaning (except kitchen), bed linen (except summer season*) * from June to September.
Ski locker.
NON SMOKING APARTMENT.
PETS ALLOWED.
Possibility to rent an indoor or outdoor parking. Consult us.
Property managed by a professional. Unless stated, services such as cleaning, bed linen, towels etc. are not included in the price of this rental. If pets are allowed (information in the advertisement), charges may be applicable.
Only equipment mentioned in this advertisement are present. Equipment not mentioned are not considered to be present. Unless there is an electric charging station in the accommodation, charging electric vehicles is prohibited.
See more
See less
Preparing for your stay
Select your accommodation

Apartment Valmorel, 2 bedrooms, 7 persons Apartment Valmorel, 2 bedrooms, 7 persons Ref: 876200
More information

7 guests
2 chambres
More information
Includes :
Select
About Résidence Athamante
Forêt Hamlet - 2 bedroom duplex apartment, of 46m²,
situated on the 1st floor of the residence ATHAMANTE, with lift,
accomodate up to 7 people.
On the ground floor: entrance, living room with dining area, a set of bunk beds (2 sleepings) and a single bed, openkitchen, bedroom 1 with bunk beds (2 sleepings), bathroom with toilet.
On the 1st floor: bedroom 2 with a double bed and a bathroom with toilet.
Independent north facing balcony with a beautiful view on the valley.
Services included: End-of-stay cleaning (except kitchen), bed linen (except summer season*) * from June to September.
Ski locker.
NON SMOKING APARTMENT.
PETS ALLOWED.
Possibility to rent an indoor or outdoor parking. Consult us.
Property managed by a professional. Unless stated, services such as cleaning, bed linen, towels etc. are not included in the price of this rental. If pets are allowed (information in the advertisement), charges may be applicable.
Only equipment mentioned in this advertisement are present. Equipment not mentioned are not considered to be present. Unless there is an electric charging station in the accommodation, charging electric vehicles is prohibited.
situated on the 1st floor of the residence ATHAMANTE, with lift,
accomodate up to 7 people.
On the ground floor: entrance, living room with dining area, a set of bunk beds (2 sleepings) and a single bed, openkitchen, bedroom 1 with bunk beds (2 sleepings), bathroom with toilet.
On the 1st floor: bedroom 2 with a double bed and a bathroom with toilet.
Independent north facing balcony with a beautiful view on the valley.
Services included: End-of-stay cleaning (except kitchen), bed linen (except summer season*) * from June to September.
Ski locker.
NON SMOKING APARTMENT.
PETS ALLOWED.
Possibility to rent an indoor or outdoor parking. Consult us.
Property managed by a professional. Unless stated, services such as cleaning, bed linen, towels etc. are not included in the price of this rental. If pets are allowed (information in the advertisement), charges may be applicable.
Only equipment mentioned in this advertisement are present. Equipment not mentioned are not considered to be present. Unless there is an electric charging station in the accommodation, charging electric vehicles is prohibited.
See more
The benefits of the residence
The benefits of the residence
Available services
Available services
Services
See details of included and paid services
Useful information
Useful information
To be paid on the spot, on the day of your arrival:
Prestations obligatoires à régler auprès de l'agence :
- Taxe de séjour
- Dépôt de garantie
- Forfait animal, si animal admis mentionné dans l'annonce
Si arrivée en dehors des horaires d'ouverture, contacter l’agence à l’avance pour le paiement du dépôt de garantie et pour organiser la remise des clefs :
- Boîte à clef
Prestations optionnelles à réserver auprès de l'agence (sous disponibilité / tarifs mentionnés dans l'annonce) :
- Location de linge de maison, de lit, serviettes (si non inclus)
- Location de matériel de puériculture selon disponibilité
- Location de place de parking
Prestations obligatoires à régler auprès de l'agence :
- Taxe de séjour
- Dépôt de garantie
- Forfait animal, si animal admis mentionné dans l'annonce
Si arrivée en dehors des horaires d'ouverture, contacter l’agence à l’avance pour le paiement du dépôt de garantie et pour organiser la remise des clefs :
- Boîte à clef
Prestations optionnelles à réserver auprès de l'agence (sous disponibilité / tarifs mentionnés dans l'annonce) :
- Location de linge de maison, de lit, serviettes (si non inclus)
- Location de matériel de puériculture selon disponibilité
- Location de place de parking
See the details
Location
Location of the residence
Services of the residence
Value for money
What our customers think of Résidence Athamante - 0 experiences
Other residences - Valmorel

Résidence CGH & SPA - Résidence Boutique La Grange aux Fées 5*
£760 £/pers. 4.4 (47 reviews)

Résidence Anitéa 5*
£456 £/pers. 4.6 (2 reviews)

Chalet Pre Peclet GL360
£523 £/pers. 5 (1 reviews)

Appartment Cheval Blanc G371
£523 £/pers.
Appartment Cheval Blanc G379
£590 £/pers.
Appartment Côte Soleil G389
£478 £/pers.
Appartment Cheval Blanc G390
£483 £/pers.
Appartment Riondet G397
£460 £/pers.
Appartment Cheval Blanc G091
£554 £/pers. 4.2 (1 reviews)
